Koncept / design

Feskekörka

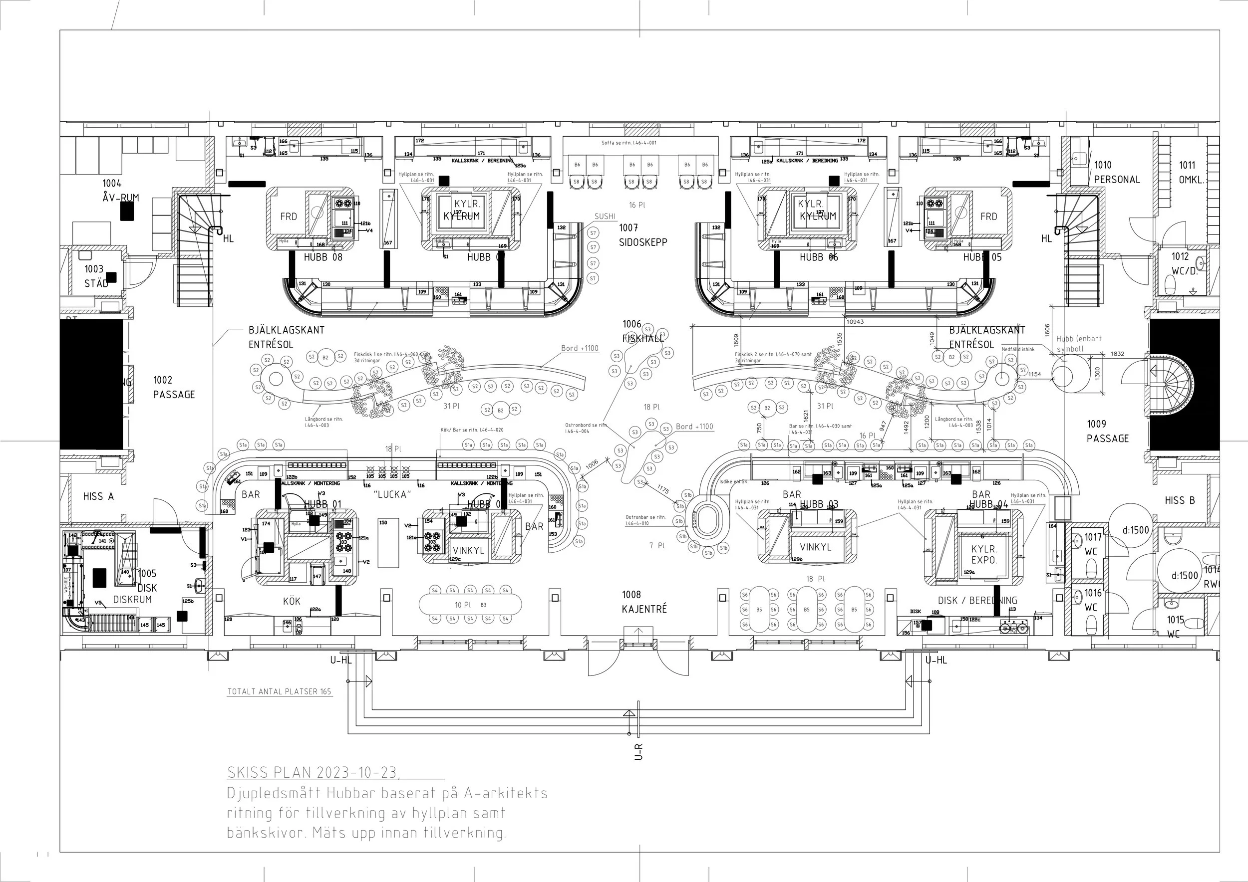
Feskekörka – Koncept & Inredning

Projekt

Feskekörka

Koncept / Design

Mähler Studios x Hotel Legacy Group

Next
Next

GoCo Health Innovation City